Property Features
- 4 BEDROOM HOUSE
- UNFURNISHED
- Large Rear Garden
- Spacious living areas
- IMPROVEMENT WORKS NEEDED
- Close to Local Amenities
- Close to Transport Links
Property Summary
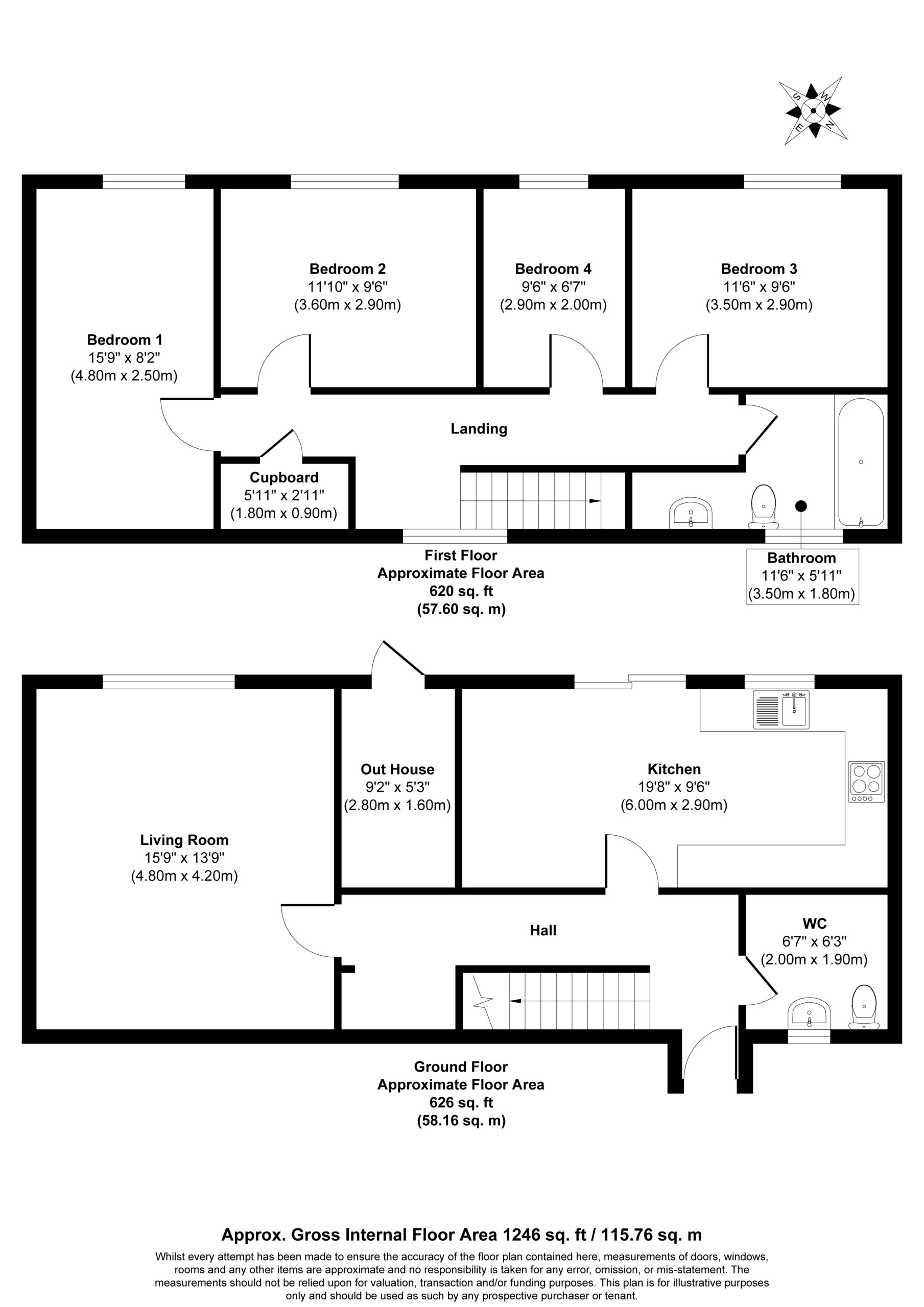
sbliving are pleased to present this excellent 4 bedroom property for sale in the popular area of Beeston. With spacious rooms, a large rear garden, and a convenient location, this is the perfect home for a family. The property is also close to local amenities and transport links such as Cottingley Primary Academy and Cottingley train station.
Priced to sell as improvement works are needed.
KEY FEATURES
🛋️ LIVING ROOM – As you enter the property through the entrance hall, to the left is the spacious living room with laminate wooden flooring and neutral walls. There is ample space for large furniture such as sofas and a dining table, allowing you to make it your own, perfect for relaxing and entertaining. A large floor to ceiling window fills the room with natural light.
🍳 KITCHEN – Through the hallway is the large kitchen with tiled flooring, white walls and black tile splashback. Sleek and modern white gloss kitchen units and wooden worktops provide plenty of storage and preparation space, alongside an integrated hob/oven, extractor fan, stainless steel sink, and under-counter space for appliances. The other end of the room offers space for a dining area, and glass sliding doors lead out onto the rear garden.
🛏️ BEDROOMS – Up the stairs in the entrance hall are 4 rooms, all neutrally decorated and brightly lit by a large window. 3 of the rooms offer ample space for a double bed and additional furniture of your choice, allowing you to create your ideal retreats. The fourth room is a versatile space that may be used as an office/workspace, nursery, child’s room or storage.
🛁 BATHROOMS – The main bathroom on the first floor features a three-piece suite, including a wash basin, W/C and bathtub with shower attachment. A frosted window fills the room with light. The downstairs also includes an additional W/C for your convenience.
🌳 EXTERNAL – Accessed via the sliding doors in the kitchen, the large rear garden consists of decking perfect for outside furniture and lawn ideal for children and pets. Fully enclosed by fencing, this is the perfect spot to unwind and enjoy the warmer months. A small shed is also provided for external storage or leisure. The front of the property features a small artificial grass garden, ideal for bin storage and additional outdoor décor. On street parking is available.
Don’t miss out on this spacious 4 bedroom house for sale – contact sbliving today!












































